Reconstruction de l’Eglise Saint Jean à Aulnay sous Bois | 2024 | Equipe : PRANG Architectes, I+A, Energethik, DB Silence, ID ECO, NBT.

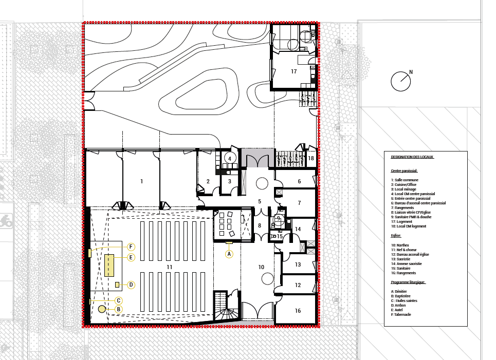
L’église Saint-Jean est conçue comme un élan spirituel, structurée autour de la nef et du choeur qui s’élèvent vers le ciel, symbole de lumière et de transcendance. La pente caractéristique de l’édifice guide naturellement le regard et le parcours, partant de l’horizontalité de l’entrée jusqu’à l’élévation du clocher, culminant au-dessus du choeur. Autour de cet espace central, le centre paroissial et ses fonctions annexes s’organisent en harmonie. À l’arrière, le jardin s’intègre comme une extension vivante et apaisante, en dialogue direct avec l’architecture, favorisant la contemplation et le recueillement.
L’église s’intègre au tissu urbain par son alignement le long de la rue Paul Eluard, en continuité du mail planté d’arbres, par sa façade sur le parvis très marquée, par son jeu de hauteurs, plus basses coté venelle, et par son jardin qui fait office d’espace de transition entre le bâtiment et l’école située à l’arrière.







