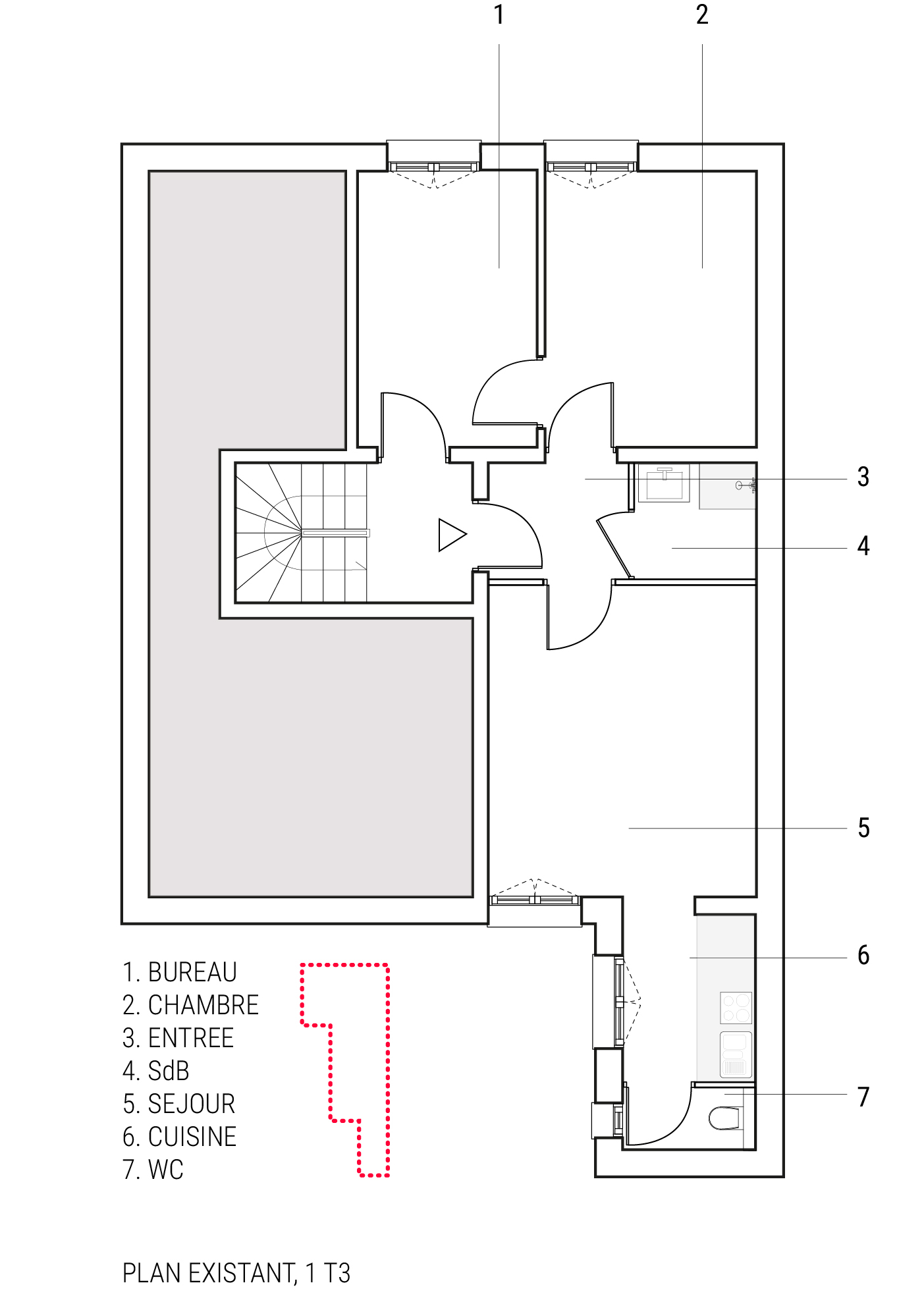
BUZENVAL

Chambre blanche, rénovation de deux appartements

  • MOA : privée
  • MOE : PRANG Architectes
  • Lieu : Paris 19ème
  • Surface : 45 m²
  • Coût : 75 000€ HT
  • Année : 2018